Architecte DE-HMONP
Agence
Projets
Contact
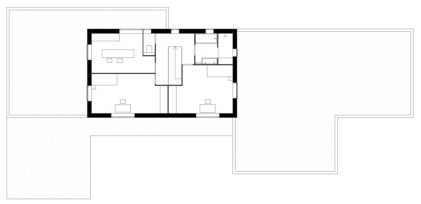
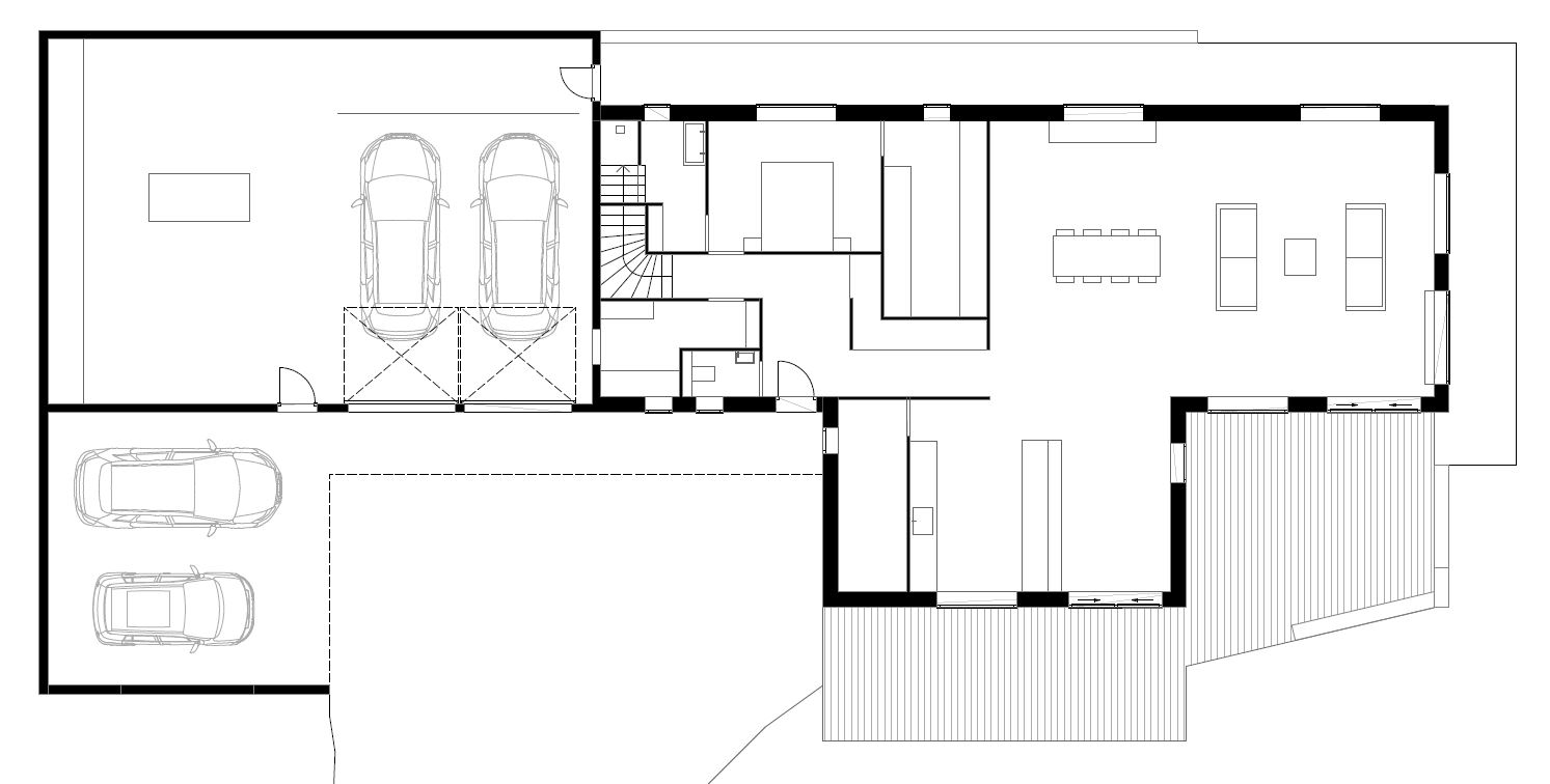
MAISON S
Description :
Construction d'une maison individuelle - Saulcy Sur Meurthe, Vosges
Mission :
Permis de construire
Surface :
191m² Habitables
État :
Livrée